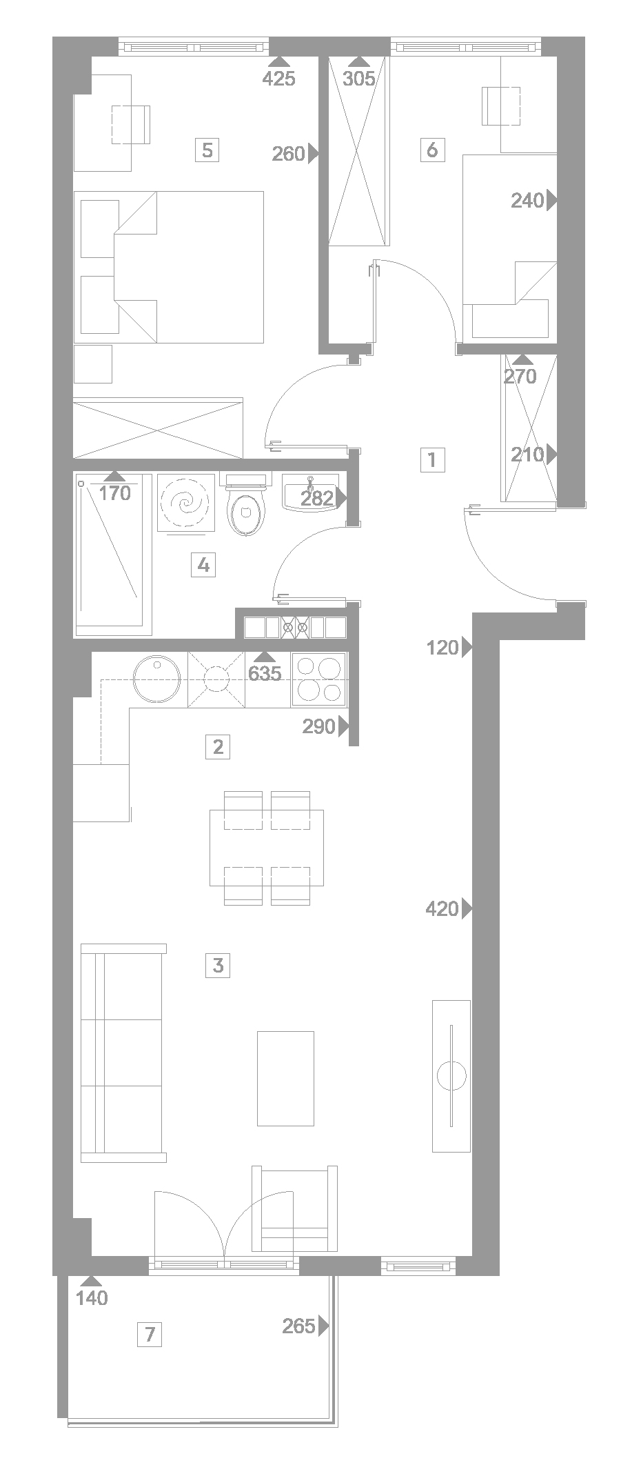
Стан бр. 1.01

  • Влезен хол 5.63 m²
  • Кујна 4.96 m²
  • Дневен престој 21.82 m²
  • Бања 4.27 m²
  • Спална соба 10.87 m²
  • Спална соба 7.24 m²
  • Тераса 3.36 m²
  • вкупна квадратура 57.0 m²
Резервирај термин

    ЗАИНТЕРЕСИРАНИ СТЕ?

    СЛОБОДНО СТАПЕТЕ

    ВО КОНТАКТ СО НАС!

    ЗА НАС

    ГП Пелистер е компанија изградена врз доверба, искуство и посветеност. Работиме на различни типови градежни проекти, со јасна цел – да испорачаме стабилни, функционални и долготрајни решенија.

    Адреса:

    Добривое Радосављевиќ бр.3 7000 Битола Македонија

    Антон Попов бр. 5
    1000 Скопје Македонија

    Телефон:
    071 207 000
    Е-маил:
    bojan@gppelister.com.mk

    КОНТАКТ

    Бојан Стерјев

    Агент за продажба

    ПОБАРАЈ ПОНУДА

      Сите права се задржани – Гп пелистер